Không còn đi theo lối mòn của những mặt tiền nhà phố khô cứng, xu hướng hiện nay đề cao sự mềm mại trong hình khối và sự thoáng đạt của công trình. Chính vì vậy, thiết kế của mẫu nhà 4 tầng 5x8m của CĐT anh Tuấn – Tân Bình này hướng đến việc mở rộng cảm nhận không gian theo chiều đứng, kết hợp thiên nhiên và ánh sáng để mang lại trải nghiệm sống dễ chịu ngay giữa lòng phố. Đây không chỉ là một công trình, mà là cách kể một câu chuyện về không gian – nơi từng chi tiết đều có lý do để tồn tại.
Có thể bạn quan tâm: Một số lỗi xây nhà dân dụng thường gặp – Đọc để biết và phòng tránh
Mặt tiền nhà 4 tầng 5x8m hiện đại giữa dãy phố
Mặt tiền ngôi nhà gây ấn tượng ngay từ cái nhìn đầu tiên bởi sự kết hợp khéo léo giữa đường cong bo góc và các mảng thẳng dứt khoát. Hệ lam dọc được bố trí lệch tầng không chỉ đóng vai trò trang trí mà còn giúp điều tiết ánh sáng, tạo hiệu ứng thị giác sinh động theo từng thời điểm trong ngày. Tone màu be – nâu gỗ chủ đạo mang lại cảm giác ấm áp, hiện đại nhưng không quá phô trương, giúp công trình nổi bật một cách tinh tế giữa dãy phố.

Ở các tầng trên, ban công được thiết kế rộng rãi kết hợp lan can kính, giúp mở rộng tầm nhìn và tăng khả năng đón sáng tự nhiên. Điểm nhấn nằm ở khu vực sân thượng với mái che uốn cong độc đáo, kết hợp mảng xanh và tiểu cảnh treo tạo nên một khoảng thở nhẹ nhàng cho toàn bộ công trình. Chính sự đan xen giữa vật liệu hiện đại và yếu tố thiên nhiên đã giúp mặt tiền nhà 4 tầng 5x8m này không chỉ đẹp mà còn có chiều sâu, mang lại cảm giác sống dễ chịu và gần gũi hơn.

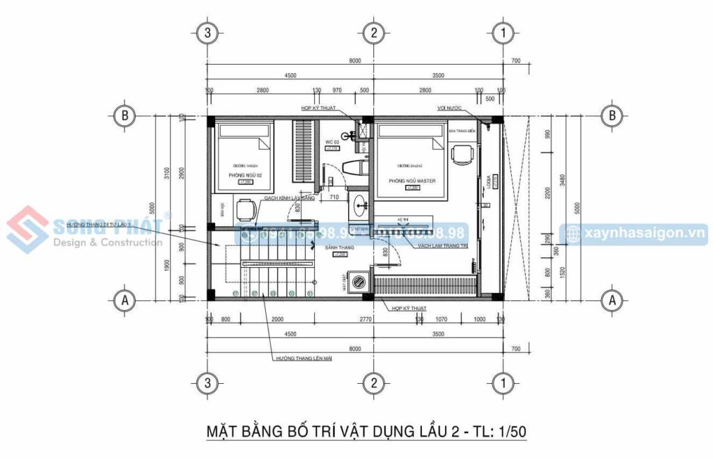
Khám phá công năng nhà 4 tầng 5x8m
Cách bố trí tầng trệt nhìn đơn giản nhưng khá “đắt”, mọi lối đi được gom lại gọn gàng nên di chuyển rất thuận tiện, không bị vướng víu hay chồng chéo. KTS cũng khéo tạo một khoảng đệm giữa chỗ để xe và không gian bên trong để hạn chế bụi, mùi và giữ sự riêng tư cần thiết. Ngoài ra, việc lấy sáng và thông gió được tính toán hợp lý giúp không gian luôn thoáng, không bị bí dù diện tích không lớn, đây là điểm rất đáng giá trong những mẫu nhà 4 tầng 5x8m.

Nhà 4 tầng 5x8m ở lầu 1 được bố trí theo hướng ưu tiên sự thông thoáng và sinh hoạt chung thoải mái cho gia đình. Không gian bếp ăn đặt về một phía giúp tách nhẹ với khu nghỉ ngơi, vừa kín đáo vừa không bị ám mùi. Điểm hay là khu vực thang và giếng trời được tận dụng để lấy sáng, giúp toàn bộ tầng luôn sáng sủa, không bị bí. Ngoài ra, việc sắp xếp công năng gọn gàng còn tạo cảm giác rộng rãi hơn so với diện tích thực, ở lâu vẫn thấy dễ chịu.

Lầu 2 được bố trí theo hướng tối ưu sự riêng tư nhưng vẫn giữ được độ thoáng cần thiết cho toàn bộ không gian. Hai phòng ngủ được tách vừa đủ để không ảnh hưởng sinh hoạt của nhau, đồng thời vẫn đảm bảo kết nối thuận tiện. Điểm đáng chú ý là cách KTS xử lý khu vực lấy sáng ở giữa nhà, giúp ánh sáng và không khí lưu thông tốt hơn – điều rất quan trọng với những mẫu nhà 4 tầng 5x8m. Nhờ vậy, không gian nghỉ ngơi luôn dễ chịu, không bị bí bách dù nằm ở khu vực giữa nhà.

Lầu 3 sử dụng diện tích lớn cho sân thượng, tạo khoảng không gian mở để thư giãn, trồng cây hoặc sinh hoạt ngoài trời. Phần còn lại vẫn được bố trí gọn gàng, đảm bảo công năng cơ bản nhưng không làm mất đi sự nhẹ nhàng của tổng thể. Điểm hay là khu vực này giúp cân bằng lại không gian sống, vừa có chỗ riêng tư, vừa có nơi “thở” cho cả nhà—một giải pháp rất hợp lý trong những mẫu nhà 4 tầng 5x8m.


Tổng thể, công trình không cố gắng “phô diễn” mà chọn cách giải quyết bài toán không gian một cách hợp lý và dễ sống. Từ mặt tiền đến cách bố trí công năng đều cho thấy sự tính toán vừa đủ: đủ riêng tư, đủ thông thoáng và đủ tiện nghi cho sinh hoạt hằng ngày. Điều đáng giá nhất là cảm giác ở lâu vẫn thoải mái, không bị gò bó hay bí bách—một tiêu chí quan trọng với những ngôi nhà phố diện tích nhỏ. Và đó cũng chính là hướng đi bền vững cho những mẫu nhà 4 tầng 5x8m hiện nay.
Xem thêm: Nhà phố 4 tầng 48m2 khu vực Gò Vấp – Mỗi mét vuông, một trải nghiệm
Tác giả: Kiến Trúc Xây Dựng Song Phát
Xây Dựng Sự Trường Tồn
Thông tin liên hệ:
Công Ty CP ĐT Kiến Trúc Xây Dựng Song Phát.
Địa chỉ: 36/1 Bàu Cát 1, Phường 14, Q.Tân Bình, TP.HCM
Xưởng nội thất: 28/6 Tân Chánh Hiệp 07, Phường Tân Chánh Hiệp, Q. 12, TP. HCM
Hotline: 0941.85.98.98 – 0909.50.53.58
Email: songphat@xaynhasaigon.vn












